Allgemeine Informationen
Vielen Dank für Ihr Interesse an unserer Baby-Studie! Die eigentliche Untersuchung dauert etwa 8-10 Minuten, einschließlich Vorbereitung und Nachbereitung. Insgesamt dauert der Besuch, einschließlich Anleitung und Fragebögen, zwischen 30 und 45 Minuten. Wir werden nach Ihrer Registrierung auf Sie zukommen, um einen individuellen Termin mit Ihnen zu vereinbaren. Voraussetzung für die Teilnahme an der Studie ist, dass Ihr Kind einsprachig Deutsch aufwächst.
Um teilzunehmen, füllen Sie bitte dieses Formular aus.
Wir kontaktieren Sie, wenn Ihr Kind 5 Monate alt ist.
Verantwortlich für die Studie ist Dr. Mireia Marimon. Kontaktieren Sie uns gerne unter eyelab@germanistik.uni-muenchen.de, wenn Sie Fragen zur Studie, dem Labor oder den Untersuchungen haben.
Informationen zur Eye-Tracking Methode
Die Studie besteht aus einem Eye-Tracking-Verfahren, bei dem die Säuglinge (auf dem Schoß einer Betreuungsperson) Bilder anschauen und Wörter hören. Währenddessen zeichnen wir mit der Eye-Tracking-Messung auf, wohin Ihr Baby genau blickt. Dies geschieht durch eine kleine Kamera, ohne dass Ihr Baby dies bemerkt oder dadurch gestört wird.
Der Eye-Tracker ist eine kleine schwarze Leiste, welche unten am Bildschirm befestigt ist; es sieht also mehr oder weniger wie ein normaler Bildschirm aus. Der Eye-Tracker nutzt infrarotes Licht, welches in der Pupille im Auge reflektiert wird, um die Augenbewegung zu erfassen. Ihr Kind ist also nicht an Geräte angeschlossen und die Messung der Blickbewegungen wird gar nicht bemerkt. Das Infrarotlicht ist absolut unbedenklich. Sie werden die ganze Zeit mit Ihrem Kind zusammen sein. Die Eye-Tracking-Daten werden pseudonymisiert gespeichert.

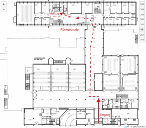
Wo sind wir?
Die Studie findet in der Schellingstraße 3 in München statt (U-bahn Universität), Rückgebäude, Raum 155/156 (1. OG). Gehen Sie durch das Gebäude und dann nach links. Dort finden Sie den Aufzug. Fahren Sie in den ersten Stock. Alternativ können Sie auch die Treppe nehmen. Wenn Sie aus dem Aufzug kommen, gehen Sie nach links bis zum Ende des Flurs.


